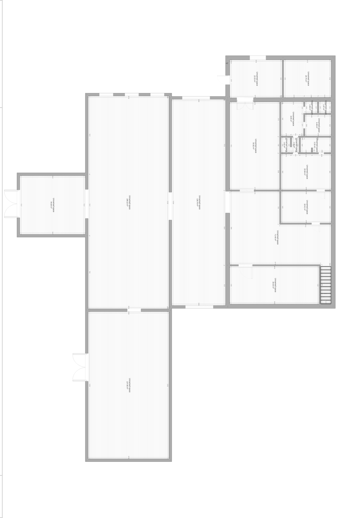
Pronájem skladové či výrobní haly 1168 m2 (č.g.706)
Pronájem skladové či výrobní haly č.706 nacházející se v průmyslové zóně TONASO Neštěmice.
- celková vnitřní plocha cca 1168 m2.
- Venkovní zpevněná plocha cca 600m2.
- V budově jsou k dispozici kanceláře se sociálním zázemím.
- Energie: Plyn, elektřina, voda, kanalizace.
- Připojení k internetu – optická síť.
- Ve výrobní hale se nachází celkem 2x Mostový jeřáb nosnost 3200Kg a 2x sloupový otočný jeřáb nosnost 250Kg.
- Prostor je součástí uzavřeného střeženého areálu.
Všechny prostory jsou vyklizené a volné k okamžitému nastěhování.
Možnost rozšíření pronájmu i o další prostory a venkovních plochy nacházejících se okolí haly.
Buy or rent properties with no commision
Lorem ipsum dolor sit amet, consetetur sadipscing elitr, sed diam nonumy eirmod tempor invidunt labore et dolore magna aliquyam erat, sed diam voluptua. At vero eos et accusam et justo duo dolores et ea rebum. Stet clita kasd gubergren, sea takimata sanctus magna Lorem ipsum dolor sit amet. Lorem ipsum dolor sit amet, consetetur sadipscing elitr, sed diam nonumy eirmod id tempor invidunt ut labore et dolore magna aliquyam erat, sed diam voluptua. At vero eos et accusam et justo duo dolores et ea rebum. Quaestio clita kasd gubergren, no sea takimata sanctus est Lorem amet. Loem ipsum dolor sit amet, consetetur sadipscing elitr, sed diam nonumy eirmod tempor invidunt ut labore et dolore magna aliquyam erat, sed diam voluptua. At vero eos et accusam mea dolores et ea rebum. Stet clita kasd gubergren sea takimata.
Buy or rent properties with no commission
Lorem ipsum dolor sit amet, consetetur sadipscing elitr, sed diam nonumy eirmod tempor invidunt ut labore et dolore magna aliquyam erat, sed diam voluptua. At vero eos et accusam et justo duo dolores et ea rebum. Stet clita kasd gubergren, no sea takimata sanctus est Lorem ipsum dolor sit amet. Lorem ipsum dolor sit amet, consetetur sadipscing elitr, sed diam nonumy eirmod tempor invidunt ut labore et dolore magna aliquyam erat, sed diam voluptua. At vero eos et accusam et justo duo dolores et ea rebum. Stet clita kasd gubergren, no sea takimata sanctus est Lorem amet. Loem ipsum dolor sit amet, consetetur sadipscing elitr, sed diam nonumy eirmod tempor invidunt ut labore et dolore magna aliquyam erat, sed diam voluptua. At vero eos et accusam et justo duo dolores et ea rebum. Stet clita kasd gubergren, no sea takimata sanctus.
„Mel graeco vim lucilius principes ea duo aeterno delen vim duis ad iusto eu diict minim dicit mea“
At vero eos et accusam et justo duo dolores et ea rebum. Stet clita kasd gubergren, no sea takimata sanctus est Lorem ipsum dolor sit amet. Lorem ipsum dolor sit amet, consetetur sadipscing elitr, sed diam nonumy eirmod tempor invidunt ut labore et dolore magna aliquyam erat, sed diam voluptua. At vero eos et rebum accusam et justo duo dolores et.
Lorem ipsum dolor sit amet, consetetur sadipscing elitr, sed diam nonumy eirmod tempor invidunt labore et dolore magna aliquyam erat, sed diam voluptua. At vero eos et accusam et justo duo dolores et ea rebum. Stet clita kasd gubergren, magna takimata sanctus est Lorem ipsum dolor.
Buy or rent properties with no commision
Lorem ipsum dolor sit amet, consetetur sadipscing elitr, sed diam nonumy eirmod tempor invidunt ut labore et dolore magna aliquyam erat, sed diam voluptua. At vero eos et accusam et justo duo dolores et ea rebum. Stet clita kasd gubergren, no sea takimata sanctus est Lorem ipsum dolor sit amet. Lorem ipsum dolor sit amet, consetetur sadipscing elitr, sed diam nonumy eirmod tempor invidunt ut labore et dolore magna aliquyam erat, sed diam voluptua. At vero eos et accusam et justo duo dolores et ea rebum. Stet clita kasd gubergren, no sea takimata sanctus est Lorem amet. Lorem ipsum dolor sit amet, consetetur sadipscing elitr ut, sed diam nonumy. Eirmod tempor invidunt ut labore et dolore magna aliquyam erat, sed diam voluptua. At vero eos et accusam et justo duo dolores et ea rebum. Stet clita kasd gubergren, no sea takimata sanctus.
Pronájem pozemků – Zpevněná plocha pro parkování či venkovní skladování, výstavbu
Pronajmeme zpevněné pozemky situované uvnitř průmyslového areálu. Pozemeky jsou vhodné k par
Kancelářské prostory
Kancelářské prostory k pronájmu se nacházejí v hlavní administrativní budově a v dalších








































